Helden van de Heide | op Elias Beeckman sportvelden


Op de vroegere militaire sportvelden verrijzen drie appartementengebouwen, met namen als 'De Arthur' en 'De Elias'. Idee is dat waar vroeger 'de helden van defensie' aan sport deden, straks gewoond wordt op (flinke) loopafstand van de Ginkelse Heide. Vóór het bouwterrein werd tot voor kort gewerkt aan de Parklaan (heet inmiddels Generaal Hackettlaan), die inmiddels zorgt voor een goede ontsluiting van dit gebied. Op de website van het project was de Generaal Hackettlaan nog niet geheel ingetekend, wat nogal een te groen beeld geeft van de omgeving. Op het terrein zelf staan namelijk helemaal geen bomen. Hopelijk konden de kopers hier doorheen kijken. Er komen twee torens met koopwoningen en één met huurwoningen. Woningtypen lopen van studioformaat tot penthouse. Voor voorzieningen moeten de bewoners straks naar het Centrum of naar winkelcentrum De Spindop (Parkweg). Een te bouwen basisschool komt aan de andere kant van de Elias Beeckmankazerne. De bouw is eind 2023 gestart. De oplevering van de eerste woningen in flat Elias 1 was najaar 2024. Elias 2 en 3 staan voor begin 2026 gepland te opnen. Alle recente foto's: (c) Allard Bijlsma.


Impressie

Bron: https://www.nieuwbouw-kazerneterreinen.nl/ Rechtsboven: huidige bebouwing Elias Beeckman.


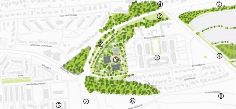
Kaart plangebied 


2025

Deze foto's: 2 november 2025.

Bij de Elias 2 en 3 worden nu ook alle stijgers weggehaald. Je kunt nu de gebouwen ook eens beter bekijken. Was de Elias 1 (vorig jaar al geopend voor huur), de Elias 2 en 3 zijn voor de koop bedoeld. Sta je daar even, dan komt er altijd wel een topekomstige bewoner langs. Men kan niet wachten ...

Deze foto's: 8 september 2025

Deze foto's: 10 maart 2025

Deze foto's: 13 januari 2025.


Uitleg bij de nummering: (1)= geplande locatie Helden van de Heide, (2)= Parklaan, inmiddels Generaal Hackettlaan geheten, (3)= vroegere Elias Beeckman-kazerne, (4)= groene bostoegang via Sijsseltselaan, (5)= vroegere Van Essenkazerne (inmiddels woningen), (6)= bosgebied de Sijsselt.   Bron kaart: www.nieuwbouw-kazerneterreinen.nl.


2024

Situatie eind september 2024. De eerste toren is inmiddels bewoond en de andere twee zijn in aanbouw.

Situatie april 2024

(c) Philip Bos | maart 2024

Situatie maart 2024


2023

Situatie november 2023

Situatie mei 2023: de bouw is van start gegaan.

Situatie 24 februari 2023. Zicht richting de Parklaan in aanleg. Rechts staan de oude kazernes 'Elias Beeckman'. In tegenstelling tot de impressietekening van de makelaar, zijn er binnen het bouwgebied geen bomen te zien. Die hebben er de laatste 100 jaar ook niet gestaan.



De sportvelden | defensieperiode

Zicht op de Elias Beeckmankazerne met onderaan de sporthal en het begin van de sportvelden.
Jaartallen onbekend. Bron: Facebook 'Verbindingsdienst Elias Beeckman Kazerne'.